Edifício GreenPark

Campolide, Lisboa

Localização

O Edifício GreenPark está localizado no final da Calçada do Baltazar, confinante com o novo Parque da Bela Flor. Além da vista do parque, também Monsanto contrasta no horizonte dando assim um sentimento de estar a viver na cidade mas com natureza em redor.

Perto de Tudo

3 min da Paça de Espanha
10 min do Centro de Lisboa
15 min do Aeroporto
25 min de Sintra
35 min de Cascais

Edifício 3D


Projeto de arquitetura de Vitor Carvalho Araújo

O Edifício

Em Breve

Tipologías dos Apartamentos


Apartamentos funcionais de linhas modernas e sobreas, totalmente equipados, aquecimento e aspiração central, arrecadação e 1/2 lugares de estacionamento

Planta do Piso Tipo

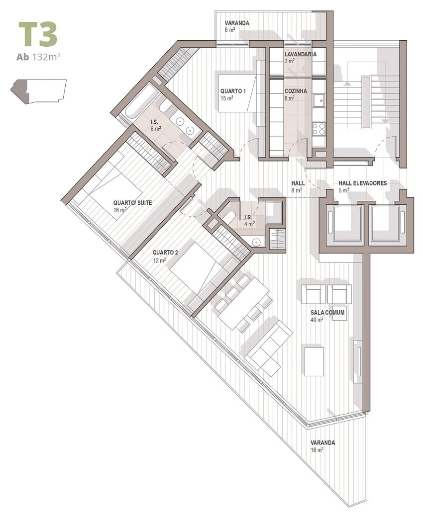
T3

Apartamento com 132 m², 2 quartos com wc partilhada e 1 quarto com wc privativa. Cozinha totalmente equipada e lavandaria separada. Sala de 40 m² com varanda de 16 m² voltada para o novo parque da Bela Flor.

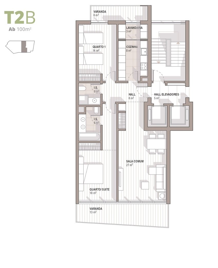
T2

Apartamentos que variam entre os 100 m² e 107 m², com suite + 1 quarto. Cozinha totalmente equipada e lavandaria separada. Sala de 24/27 m² com varanda voltada para o novo parque da Bela Flor.

Contate-nos

Share by: